fbpx

Orcas y jorobadas

70°01′52″ N

Asiste a la mayor concentración de orcas y jorobadas de Noruega

Si siempre soñaste con ver orcas, esta experiencia te hará llorar de emoción.
En aguas noruegas, cada año se dan cita cientos de orcas y jorobadas para acudir a su delicioso festín del arenque. Un evento que genera una curiosa relación entre ambas especies y de la que podrás ser testigo. Una semana en un buque de expedición privado, dedicada por completo a tu sueño de verlas en libertad

DURACIÓN

7 días

FECHA

19-25 noviembre 2026

16 PLAZAS

 

PRECIO CAMAROTES

  • Suite Executive: 6.290 euros/persona

    Suite Superior: 5.590 euros/persona

    Suite Deluxe: 5.290 euros/persona AGOTADA

 

ALOJAMIENTOS

¡Vive en un barco de expedición privado!

DIFICULTAD

Sin snorkel
Diseñador web 5%
Con snorkel
Diseñador web 70%

Experiencias que te esperan

Así podría ser un día de expedición

Quedaremos en Tromsø para embarcar hacia las 16:30 de la tarde, lo que te permite aterrizar en la ciudad ese mismo día para facilitarte las conexiones de vuelos. 

Iremos directamente al barco para que puedas acomodarte en tu camarote y familiarizarte con la que será tu casa durante los próximos días. Tras el cocktail de bienvenida del capitán, en el que conoceremos a toda la tripulación, haremos una prueba de trajes secos y equipo de snorkel para que comprobemos que todo te queda bien y cojas soltura con la equipación. 

Después, disfrutaremos de nuestra primera cena a bordo y levaremos anclas. Nos esperan 7 horas de camino hasta el «territorio orca», que puedes pasar tranquilamiente durmiendo y preparándote para las experiencias que vas a vivir estos próximos días.

Cada día desayunaremos normalmente entre las 08:00 y las 09:00 de la mañana. A partir de las 09:00/09:30, nuestros guías estarán de guardia en las cubiertas y en el puente de mando para localizar cualquier actividad en el agua. 

¡Tú también puedes unirte! te esperaremos en cubierta para admirar el paisaje y disfrutar de los avistamientos que podamos tener desde el barco. 

Cuando se encuentra algún animal, los guías determinan en función de su comportamiento y de la meteo, si es posible salir a las zodiacs o si tenemos que verlas desde el barco. Si es posible ir a las zodiacs, nos avisarán para que nos preparemos con toda la equipación ¡y al agua, patos!

Nos dividiremos en dos zodiacs, en cada una de ellas habrá un guía experto y un miembro del equipo de 55gn para que toda la experiencia sea en castellano. Una vez en las zodiacs, nos acercamos a los animales siempre de forma respetuosa y ética. Los guías determinarán cuándo podrás meterte en el agua para verlas por debajo. ¡Brutal!

Volveremos al barco para comer y la tripulación nos recibirá con una bebida calentita y te ayudaremos a quitarte el traje seco. Disfruta de una ducha calentira en tu camarote antes de reponer fuerzas en la comida. 

Por las tardes tendremos distintas charlas impartidas por expertos, sesiones de sauna/jacuzzi, bautismo ártico y ¡por supuesto! estaremos muy pendientes a la posibilidad de ver auroras boreales. 

Llegaremos al puerto de Tromso la noche anterior al día de regreso. 

Después del desayuno nos despediremos y bajaremos a tierra para que cada uno pueda coger su vuelo de vuelta a casa. 

Si tu vuelo sale temprano, no pasa nada; sin duda podrás cogerlo.

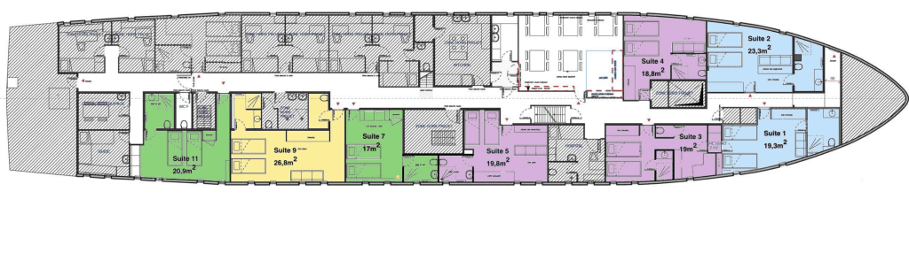
POLARFRONT, nuestro buque de expedición

SUITE DELUXE

6290 € / persona

SUITE SUPERIOR

6590 € / persona

SUITE EJECUTIVA

7.290 € / persona 

Los precios incluyen

Los precios no incluyen

Te lo ponemos fácil.
Prepara tu viaje con nuestra plataforma de viajeros

El Área de Viajeros, el lugar donde empieza tu viaje

ROPA
PDF descargable con indicaciones de qué traer en la maleta y cómo hay que venir vestidos.

VUELOS
Os explicamos exactamente qué vuelo tenéis que coger.

DOCUMENTACIÓN
DNI o Pasaporte

SEGURO DE VIAJE
Siempre recomendamos contratar un seguro de viaje para cubrir posibles urgencias sanitarias o cancelación de viaje. Os proporcionamos un enlace para que lo contratéis con un 10% de descuento.

ESCALAS
Os damos info y recomendaciones por si queréis aprovechar las escalas en Oslo y Tromso.

Además, antes del viaje…

RESOLVEMOS TUS DUDAS
Durante toda la fase de preparación, podrás contactarnos por WhatsApp, email o mensajes directos de Instagram para resolver todas las dudas que tengas. Ilimitadas.

GRUPO DE WHATSAPP
Una semana antes del viaje, crearemos un grupo de whatsapp con el resto de integrantes del equipo y con el anfitrión del viaje para que os vayáis conociendo y podáis resolver dudas de última hora.

¿Es para ti?

NIVEL DE DIFICULTAD SIN SNORKEL
5%

Si no quieres hacer snorkel, el viaje es fácil. No requiere una forma física especial.

NIVEL DE DIFICULTAD CON SNORKEL
70%

Si quieres hacer snorkel, necesitas estar en buena forma física para poder impulsarte (con ayuda) del mar a la zodiac. Un día de avistamientos podemos hacer múltiples inmersiones y es físicamente cansado.

ES PARA TI, SI…

NO ES PARA TI, SI…

#EmptyTheTanks

Creemos que ningún animal debería vivir en cautividad solo por nuestro entretenimiento y, por ende, para el beneficio de una empresa.

Por eso, durante nuestro viaje te introduciremos al fascinante mundo de estos majestuosos animales con la esperanza de que te unas a nuestra comunidad de embajadores, corras la voz y, entre todos, acabemos con la lacra de zoos y acuarios.

Donaremos un 5% de los beneficios del viaje a la organización @Urgentseas para apoyar su lucha contra la cautividad de los mamíferos marinos.

También contribuiremos económicamente con la ONG noruega Norwegian Orca Survey, dedicada al estudio e investigación de las orcas que pululan en territorio noruego. 

¡Por todas y cada una de las orcas que han muerto a causa de su cautiverio y por las que todavía languidecen en acuarios del mundo!

La reserva se efectúa realizando un pago del 30% del importe total mediante tarjeta o transferencia bancaria (pídenoslo en hola@55gradosnorte.com). 

El importe restante se abona 3 meses antes del viaje mediante transferencia bancaria. 

¿A dónde hay que volar?

A Tromsø, pero no te preocupes, te lo explicamos cuando estés dentro

Te recomendamos encarecidamente llevar biodramina por si las moscas, especialmente para los trayectos de Tromsø al territorio orca y viceversa. 

¡Claro! en este barco no tenemos camarotes individuales, pero puedes compartir un camarote doble con una persona de tu mismo sexo 🙂

Si quieres hacer snorkel, sí que es importante que tengas cierta forma física para poder impulsarte desde el agua a la zodiac (con ayuda). Si tienes algún problema de movilidad, pero sueñas con ver orcas en libertad ¡puedes hacerlo! (en función del grado del problema que tengas) tanto desde el barco, como desde la zodiac. Si consideras que tu nivel físico no es apropiado para snorkel, siempre puedes disfrutar desde la zodiac. 

Uno evento como este es único en todo el planeta. 

Vamos a ser testigos de la mayor congregación de orcas y ballenas jorobadas de Noruega. 

Ir en barco nos permite adentrarnos en el sistema de fiordos y estar siempre en los lugares donde ocurre la acción. Podemos ver ballenas desde cubierta tomando un café incluso cuando la meteo o el mar no acompañan y no podemos salir con las zodiacs. 

Esta expedición de vida a bordo nos garantiza el mayor número de avistamientos posible y, al estar en el lugar donde ocurren las cosas todo el rato, multiplica nuestras posibilidades no solo de ver distintas especies (orcas, ballenas jorobadas, ballenas de aleta) sino distintos comportamientos de cada especie y entre especies; además de alucinar con las técnicas de alimentación por carrusel, en el caso de las orcas, y de alimentación por embestida, de jorobadas y ballenas de aleta. 

¡Es LA EXPEDICIÓN si te encantan las ballenas!

Con un traje seco completo que incluye botines. ¡No vas a pasar frío ni en el agua ni al entrar o salir de ella!

También te proporcionamos un mono térmico para ponerte por debajo del traje seco o para moverte por las cubiertas del barco.

¿QUIERES MÁS AVENTURAS?

Habla con nosotros

¿Necesitas asesoramiento? ¿Tienes dudasr? ¿Te gustaría crear una expedición privada para tu grupo de amigos, familiares o compañeros de trabajo?